您现在所在的位置 :
pc蛋蛋 > pc蛋蛋(中国)开奖记录查询站
自然资源局 > 通知公告
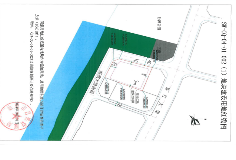
广东禾木文旅有限公司通过公开招拍挂取得位于pc蛋蛋(中国)开奖记录查询站 区海滨大道西段北侧一宗面积16431㎡旅馆用地的土地使用权,现拟核发该用地的建设用地规划许可证。依照《广东省城乡规划条例》第二十九条的有关规定,对相关事项公示如下:
用地单位:广东禾木文旅有限公司。
用地位置:pc蛋蛋(中国)开奖记录查询站 区海滨大道西段北侧。
用地性质:旅馆用地。
用地面积:16431㎡。 广东禾木文旅有限公司建设用地规划许可证的具体内容,可到我局咨询或登录网站(//pceggs28.net/swgtj)查询。在公示时限内,任何单位、组织和个人对本公示所列内容有异议的,请在公示之日起十个自然日内,以书面材料形式向我局反映,逾期未提出的,视为放弃上述权利。
特此公示
联系人: 陈先生 联系电话:0660-3377096
附:SW-CQ-04-01-002(1)地块建设用地红线图。
pc蛋蛋(中国)开奖记录查询站 自然资源局
2026年2月3日
您访问的链接即将离开“pc蛋蛋(中国)开奖记录查询站 自然资源局”网站,是否继续?