pc蛋蛋

您现在所在的位置 : pc蛋蛋 > pc蛋蛋(中国)开奖记录查询站 自然资源局 > 通知公告
pc蛋蛋 高新区红草园区建设用地规划许可证批前公示
  • 2025-12-25 17:11
  • 来源: 本网
  • 发布机构: pc蛋蛋(中国)开奖记录查询站 自然资源局
  • 【字体:    

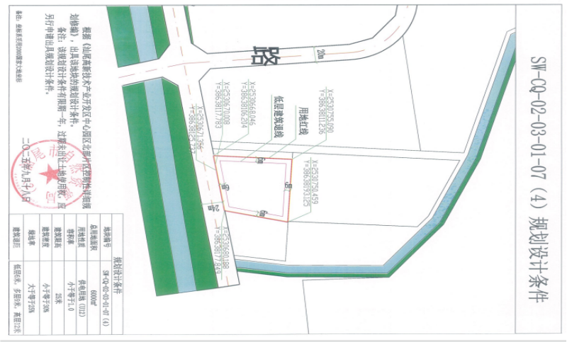
  pc蛋蛋 唐兴新能源有限责任公司通过公开招拍挂取得位于pc蛋蛋 高新区红草园区一宗面积6000㎡供电用地的土地使用权,现拟核发该用地的建设用地规划许可证。依照《广东省城乡规划条例》第二十九条的有关规定,对相关事项公示如下:

  用地单位:pc蛋蛋 唐兴新能源有限责任公司。

  用地位置:pc蛋蛋 高新区红草园区。

  用地性质:供电用地。

  用地面积:6000㎡。    

  pc蛋蛋 唐兴新能源有限责任公司建设用地规划许可证的具体内容,可到我局咨询或登录网站(//pceggs28.net/swgtj)查询。在公示时限内,任何单位、组织和个人对本公示所列内容有异议的,请在公示之日起十个自然日内,以书面材料形式向我局反映,逾期未提出的,视为放弃上述权利。      

  特此公示    

  联系人: 陈先生    联系电话:0660-3377096

  附:SW-CQ-02-03-01-07(4)地块建设用地红线图

  pc蛋蛋(中国)开奖记录查询站 自然资源局

  2025年12月25日


关联稿件:
相关附件:
扫一扫在手机打开当前页

您访问的链接即将离开“pc蛋蛋(中国)开奖记录查询站 自然资源局”网站,是否继续?