pc蛋蛋

您现在所在的位置 : pc蛋蛋 > pc蛋蛋(中国)开奖记录查询站 自然资源局 > 通知公告
市区文德路东侧建设用地规划许可证批前公示
  • 2025-12-12 17:27
  • 来源: 本网
  • 发布机构: pc蛋蛋(中国)开奖记录查询站 自然资源局
  • 【字体:    

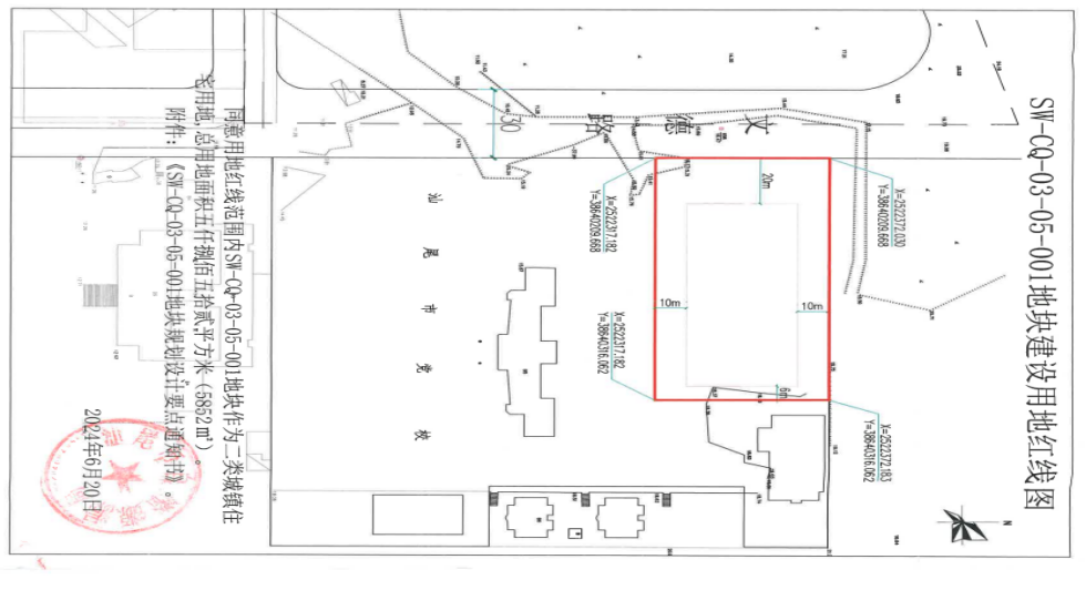
  pc蛋蛋(中国)开奖记录查询站 人才安居有限公司通过公开招拍挂取得位于市区文德路东侧一宗面积5852㎡二类城镇住宅用地的土地使用权,现拟核发该用地的建设用地规划许可证。依照《广东省城乡规划条例》第二十九条的有关规定,对相关事项公示如下:

  用地单位:pc蛋蛋(中国)开奖记录查询站 人才安居有限公司。

  用地位置:市区文德路东侧。

  用地性质:二类城镇住宅用地(070102)。

  用地面积:5852㎡。    pc蛋蛋(中国)开奖记录查询站 人才安居有限公司建设用地规划许可证的具体内容,可到我局咨询或登录网站(//pceggs28.net/swgtj)查询。在公示时限内,任何单位、组织和个人对本公示所列内容有异议的,请在公示之日起十个自然日内,以书面材料形式向我局反映,逾期未提出的,视为放弃上述权利。      特此公示    

  联系人: 陈先生    联系电话:0660-3377096

  附:SW-CQ-03-05-001地块建设用地红线图。

pc蛋蛋(中国)开奖记录查询站 自然资源局

2024年12月12日


关联稿件:
相关附件:
扫一扫在手机打开当前页

您访问的链接即将离开“pc蛋蛋(中国)开奖记录查询站 自然资源局”网站,是否继续?